290.871,00€
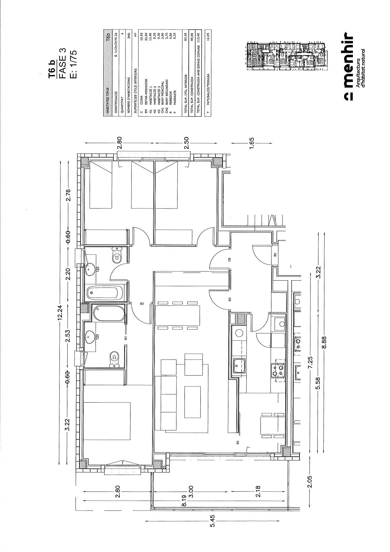
Pis de la Tercera Fase de la promoció Pere Alegret.
- 3
- 2
- 113.4m²
- REF:09938
Descripción
Pis de la Tercera Fase de la promoció Pere Alegret.
Pisos en construcció que correspon a la Tercera Fase a partir de 82m2 aproximadament.
Consta de 3 habitacions , 1 doble tipus suite, 2 individuals, cuina i lluminós saló- menjador amb sortida a terrassa de 13,85 m².
Zona comunitària amb piscina i zona de jocs infantil, plaça de parquin i traster opcional.
Acabats de la millor qualitat, amb sòls de parquet, fusteria d’alumini amb vidre de doble cambra i pont tèrmic , sistema de climatització amb aerotèrmia, mobles de cuina amb acabats en blanc i Silverstone.
Situats prop de tots els serveis necessaris i del centre de Vilafranca, molt bona connexió amb AP-7, N-340 I
FINQUES SIP REF 9938















